Chaudière nue à équiper basse température mixte fioul – gaz 25kW (sans brûleur) au sol pour chauffage et ECS à accumulation ballon inox 80 litres intégré évacuation cheminée 125mm OPTIMA 4125B ATLANTIC 026617
CHAUD.OPTIMA 4125B CHEM.MIXTE 26617
Chaudière nue basse consommation mixte Gaz / Fioul à équiper d’un brûleur à air soufflé.
Ballon inox et serpentin semi-immergé.
Corps de chauffe en acier
• Porte brûleur fonte avec charnières réversibles
• Boîte à fumées réversible avec trappe de ramonage
• Purgeur
• Vanne de vidange
• 2 départs / 2 retours
• Tableau de bord complet (avec pré-découpe pour loger un boîtier de
régulation)
• Pieds de mise à niveau
• Ballon inox semi-immergé avec aquastat sanitaire indépendante :
– 80 L sur le modèle 4125Â
Â
Le préparateur d’eau chaude sanitaire garantit une stabilité de température tout au long du puisage.
Corps de chauffe en acier de conception éprouvée pour une durée de vie optimisée.
Chaudière très silencieuse grâce au capot insonorisant (en option).
Tableau de bord simple d’utilisation permettant d’adapter les réglages de votre chauffage à vos besoins.
Confort ECS : ballon d’eau chaude de 80 à 130L assurant un très bon confort sanitaire (18L/min à 28L/min).
Produit 2 en 1 : production d’eau chaude sanitaire (de série) + chauffage.
Chaudière fonctionnant au fioul ou au gaz (au choix).
Â
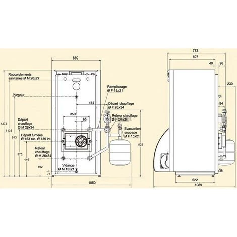
Caractéristiques :
Type de chaudière : Basse Température
Type d’évacuation : cheminée
Puissance utile nominale kW : 25
Plage de puissance kW : 22-25
Poids kg : 126
Contenance en eau du corps de chauffe l : 100
Contenance du ballon l : 80
Â
Brûleur fioul préconisé en option : Stella 4134/4134 R
Pour chaudière complète, accessoires en option :
brûleur Stella 4134 réf 071905 + capot insonorisant réf 074194 + kit hydraulique E55 réf 074202.
Code EAN : 3116370266179
Tarif année2022
ATL026617



















Avis
Il n’y a pas encore d’avis.